Bên cạnh kiểu thang máy cửa mở từ tâm thì thang máy cửa mở lùa một phía cũng rất được yêu chuộng. Hệ thống thang máy này sử dụng cơ chế hoạt động cửa lùa tập trung về một phía theo yêu cầu. Chúng sẽ sử dụng kết hợp giữa cửa tầng và cửa cabin để vận hành đóng – mở cửa. Trong số các loại đầu cửa tầng thông dụng hiện nay thì sản phẩm đầu cửa tầng CM02, 2 cánh mở lùa SO600-SO1800, loại dùng đối trọng là lựa chọn hàng đầu của rất nhiều khách hàng.
Thông số kỹ thuật
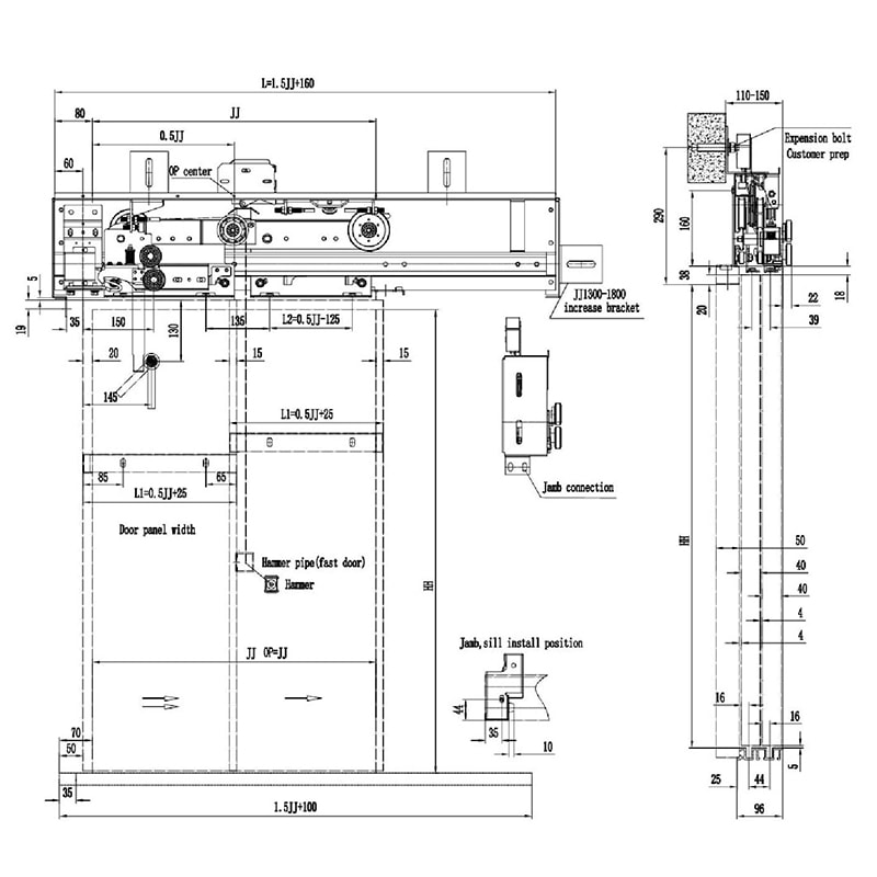
| JJ | L | L1 | L2 |
| 600 | 1060 | 325 | 175 |
| 650 | 1135 | 350 | 200 |
| 700 | 1210 | 375 | 225 |
| 750 | 1285 | 400 | 250 |
| 800 | 1360 | 425 | 275 |
| 850 | 1435 | 450 | 300 |
| 900 | 1510 | 475 | 325 |
| 950 | 1585 | 500 | 350 |
| 1000 | 1660 | 525 | 375 |
| 1100 | 1810 | 575 | 425 |
| 1200 | 1960 | 625 | 475 |
| 1300 | 2110 | 675 | 525 |
| 1400 | 2260 | 725 | 575 |
| 1500 | 2410 | 775 | 625 |
| 1600 | 2560 | 825 | 675 |
| 1700 | 2710 | 875 | 725 |
| 1800 | 2860 | 925 | 775 |
Tính năng nổi bật của đầu cửa tầng CM02, 2 cánh mở lùa SO600-SO1800
Đầu cửa tầng CM02, 2 cánh mở lùa SO600-SO1800, loại dùng đối trọng sở hữu rất nhiều tính năng nổi bật, là sản phẩm được sử dụng phổ biến trong thị trường nội địa Trung Quốc:
- Đầu cửa tầng có thiết kế chắc chắn, đạt tiêu chuẩn chất lượng của Trung Tâm Kiểm tra Thang máy (Trung Quốc)
- Có thể mở khóa tùy chọn theo OPH: Mở khóa tấm/ mở khóa dây
- Cho khoảng mở cửa rộng rãi với đa dạng kích thước
- Hoạt động êm ái, mượt mà với độ an toàn cao
Mua đầu cửa tầng CM02, 2 cánh mở lùa SO600-SO1800 dùng đối trọng tại Trường An Elevator
Trường An Elevator chuyên phân phối các sản phẩm nhập khẩu chính hãng từ các loại máy kéo thang máy, tủ điều khiển, phụ kiện thang máy hay hệ thống truyền động cửa nhằm mục đích cung cấp những sản phẩm, thiết bị lắp đặt – thi công thang máy chất lượng với mức giá tốt đến cho người dùng nước ta. Một sản phẩm rất được khách hàng yêu chuộng tại Trường An Elevator đó chính là đầu cửa tầng CM02, 2 cánh mở lùa SO600-SO1800.
Khi chọn mua đầu cửa tầng CM02, 2 cánh mở lùa SO600-SO1800, loại dùng đối trọng tại Trường An Elevator, chúng tôi cam kết:
- Cung cấp sản phẩm chính hãng 100%, có đầy đủ giấy tờ chứng minh nguồn gốc xuất xứ
- Tư vấn 24/7
- Chính sách bảo hành hãng, bảo trì nhanh chóng tận nơi
- Giá cả cạnh tranh
- Vận chuyển COD trên toàn quốc
Nếu quý khách hàng có bất kỳ thắc mắc nào liên quan đến sản phẩm, có nhu cầu cần mua đầu cửa tầng CM02, 2 cánh mở lùa SO600-SO1800, loại dùng đối trọng hay các sản phẩm, thiết bị sử dụng thi công – lắp đặt hệ thống thang máy xin liên hệ đến cho Trường An Elevator, chúng tôi luôn sẵn sàng hỗ trợ!



Reviews
There are no reviews yet.