Hệ thống cửa cabin thang máy gồm đầu cửa, cánh mở và biến tần là những bộ phận không thể thiếu nhằm giúp cửa thang máy có thể thao tác đóng mở với nhiều điều chỉnh về giới hạn cửa mở, giảm tốc đóng – mở cửa, thời gian đóng – mở cửa tùy theo mong muốn của khách hàng. Hiện hệ thống cửa cabin MJ01D-N2 gồm có đầu cửa cabin MJ01D-N2 là bộ sản phẩm đang được sử dụng phổ biến nhất.
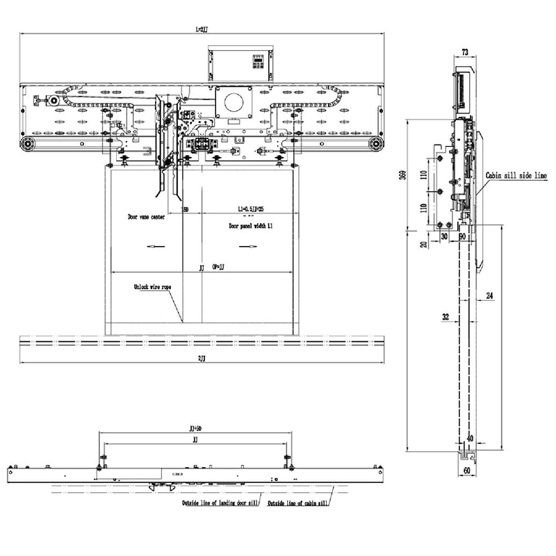
Thông số kỹ thuật
| JJ | L | L1 | L2 |
| 600 | 1200 | 325 | 175 |
| 650 | 1300 | 350 | 200 |
| 700 | 1400 | 375 | 225 |
| 750 | 1500 | 400 | 250 |
| 800 | 1600 | 425 | 275 |
| 850 | 1700 | 450 | 300 |
| 900 | 1800 | 475 | 325 |
| 950 | 1200 | 500 | 350 |
| 1000 | 2000 | 525 | 375 |
| 1050 | 2100 | 550 | 400 |
| 1100 | 2200 | 575 | 425 |
| 1150 | 2300 | 600 | 450 |
| 1200 | 2400 | 625 | 475 |
Ưu điểm nổi bật của đầu cửa cabin MJ01D-N2
Ưu điểm nổi bật của Đầu cửa cabin MJ01D-N2, 2 cánh mở trung tâm CO600-CO1200, Biến tần ALX gồm:
- Động cơ đồng bộ nam châm vĩnh cửu nên cho khả năng vận hành hiệu suất cao, tiết kiệm năng lượng, bảo vệ môi trường
- Có bộ mã hóa tuyệt đối, kiểm soát vị trí cố định
- Cánh cửa đồng bộ với chức năng khóa cửa, đồng bộ mở cửa xe/ thang
- Tấm treo cửa có thiết bị chống va đập, bảo vệ an toàn tốt, cực kỳ bảo mật
- Kích thước nhỏ gọn, kết cấu chắn chắn, phù hợp sử dụng với thang máy biệt thự
Mua đầu cửa cabin MJ01D-N2 tại Trường An Elevator
Để thang máy hoạt động ổn định, hệ thống cửa mở ra – đóng vào hoàn hảo không sai phạm lỗi thì chọn mua đầu cửa cabin tại địa chỉ uy tín là điều vô cùng cần thiết. Đầu cửa cabin MJ01D-N2, 2 cánh mở trung tâm CO600-CO1200, Biến tần ALX đang được Trường An Elevator phân phối chính hãng tại Việt Nam với mức giá cực kỳ tốt kèm theo đó là nhiều hỗ trợ, chính sách ưu đãi hấp dẫn:
- Chúng tôi cam kết 100% sản phẩm cung cấp đều là hàng chính hãng, có giấy tờ chứng minh xuất xứ
- Có chính sách bảo hành theo hãng, thời gian bảo hành dài hạn
- Bảo trì tận nơi
- Hỗ trợ tư vấn tận tình 24/7
- Mức giá cạnh tranh
- Ship COD toàn quốc
Nếu quý khách hàng có nhu cầu mua Đầu cửa cabin MJ01D-N2, 2 cánh mở trung tâm CO600-CO1200, Biến tần ALX, cần hỗ trợ tư vấn và nhận báo giá chi tiết xin liên hệ đến cho Trường An Elevator, chúng tôi sẽ nhanh chóng phục vụ.
- Hotline: 0879 124 460
- Email: Sale1.truongan@gmail.com
- Địa chỉ: Số 06-BT2, ngõ 66 đường Kim Giang, Phường Đại Kim, Quận Hoàng Mai, Hà Nội



Reviews
There are no reviews yet.