Bên cạnh các loại đầu cửa cabin trên thị trường thì đầu cửa cabin MJ02D, 2 cánh mở lùa SO600-SO1800, biến tần ALX là lựa chọn được ứng dụng nhiều nhất hiện nay vào hệ thống cửa thang máy gia đình, tải người. Chúng giúp thang máy dễ dàng điều chỉnh được những thông số kỹ thuật về tốc độ đóng – mở cửa, thời gian đóng – mở cửa, giới hạn cửa mở,… Hiện sản phẩm đầu cửa cabin MJ02D, 2 cánh mở lùa SO600-SO1800, biến tần ALX được Trường An Elevator nhập khẩu chính hãng, phân phối trên toàn quốc với mức giá cực kỳ tốt.
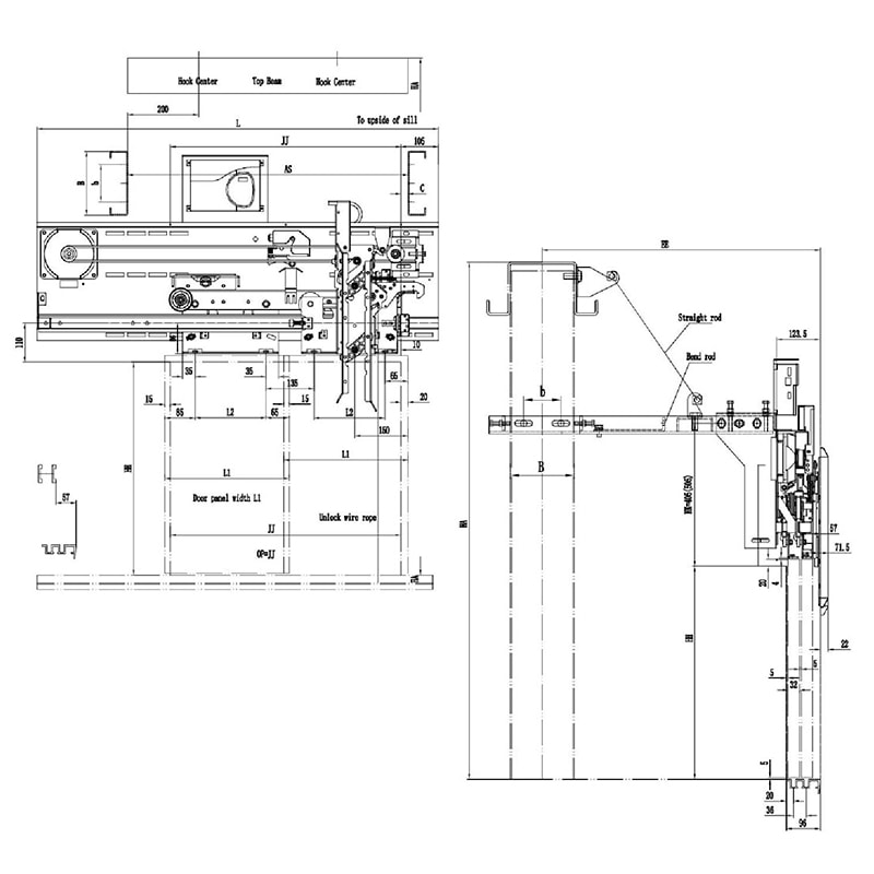
Thông số kỹ thuật
| JJ | L | L1 | L2 |
| 600 | 1080 | 325 | 175 |
| 650 | 1130 | 350 | 200 |
| 700 | 1205 | 375 | 225 |
| 750 | 1280 | 400 | 250 |
| 800 | 1355 | 425 | 275 |
| 850 | 1430 | 450 | 300 |
| 900 | 1505 | 475 | 325 |
| 950 | 1580 | 500 | 350 |
| 1000 | 1655 | 525 | 375 |
| 1100 | 1805 | 575 | 425 |
| 1200 | 1955 | 625 | 475 |
| 1300 | 2105 | 675 | 525 |
| 1400 | 2255 | 725 | 575 |
| 1500 | 2405 | 775 | 625 |
| 1600 | 2555 | 825 | 675 |
| 1700 | 2705 | 875 | 725 |
| 1800 | 2855 | 925 | 775 |
Tính năng nổi bật của đầu cửa cabin MJ02D, 2 cánh mở lùa SO600-SO1800, biến tần ALX
Những tính năng nổi bật của đầu cửa cabin MJ02D, 2 cánh mở lùa SO600-SO1800, biến tần ALX như:
- Sử dụng động cơ đồng bộ nam châm vĩnh cửu, cho hiệu quả vận hành tốt, tiết kiệm năng lượng
- Cánh cửa được đồng bộ với chức năng khóa cửa, vận hành đồng thời với cửa xe/ thang
- Trên tấm treo cửa có thiết bị chống va đập, bảo vệ an toàn tốt
- Kích thước đầu cửa cabin nhỏ gọn, chắc chắn, phù hợp sử dụng với thang máy tải khách
Mua đầu cửa cabin MJ02D, 2 cánh mở lùa SO600-SO1800, biến tần ALX tại Trường An Elevator
Nếu bạn đang có nhu cầu cần mua đầu cửa cabin MJ02D, 2 cánh mở lùa SO600-SO1800, biến tần ALX chính hãng, chất lượng thì Trường An Elevator chính là lựa chọn tuyệt vời nên cân nhắc đến. Chúng tôi chuyên phân phối các sản phẩm phục vụ cho nhu cầu thiết kế, thi công thang máy như máy kéo thang máy, tủ điều khiển, hệ thống truyền động và phụ kiện thang máy nhập khẩu chính hãng 100% đến cho khách hàng tại Việt Nam.
Khi lựa chọn mua đầu cửa cabin MJ02D, 2 cánh mở lùa SO600-SO1800, biến tần ALX tại Trường An Elevator, chúng tôi cam kết:
- Cung cấp hàng chính hãng, đảm bảo chất lượng với đầy đủ giấy tờ chứng minh xuất xứ
- Có chính sách bảo hành minh bạch, theo hãng với thời gian dài hạn
- Ship COD toàn quốc, bảo trì tận nơi
- Tư vấn 24/7
- Giá cả cạnh tranh
Để được hỗ trợ tư vấn, nhận báo giá chi tiết sản phẩm đầu cửa cabin MJ02D, 2 cánh mở lùa SO600-SO1800, biến tần ALX xin liên hệ đến cho Trường An Elevator thông qua:
- Hotline: 0879 124 460
- Email: Sale1.truongan@gmail.com
- Địa chỉ: Số 06-BT2, ngõ 66 đường Kim Giang, Phường Đại Kim, Quận Hoàng Mai, Hà Nội



Reviews
There are no reviews yet.